稲荷小学校800m(徒歩10分)
松江中学校1600m(徒歩20分)
セブンイレブン 草加稲荷中央通り店300m(徒歩4分)
マルエツ 草加稲荷店400m(徒歩5分)
サンドラッグ 草加稲荷店400m(徒歩5分)
業務スーパー 草加店600m(徒歩8分)


【現地見学会開催中】
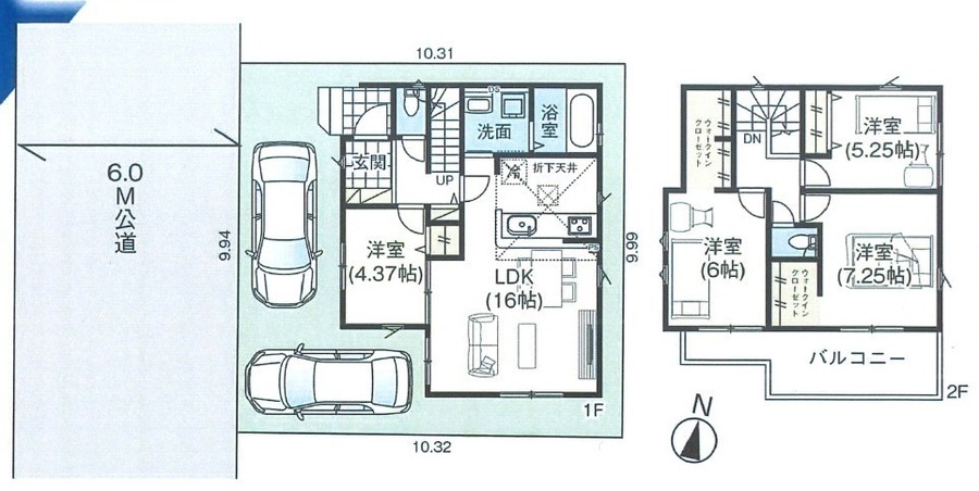
来客時も安心の駐車2台可♪
家族が自然と集まる広々LDK16帖、会話が弾む開放的な対面キッチン、雨の日でも快適に使える浴室乾燥機付き、全居室収納でお部屋もすっきり、大型荷物も安心のWICは2ヶ所完備◎
家庭菜園なども楽しめる南面ワイドバルコニー、毎日の生活に便利な周辺買物施設充実、光熱費を抑え快適に暮らせるZEH水準仕様、安心と資産価値の高い長期優良住宅で心地よい暮らしをサポート♪
東武伊勢崎・大師線 草加駅 バス 16分 「稲荷コミュニティーセンター入口」 停歩 2分 駅までのルート
■来客時も安心の駐車2台可
■家族が自然と集まる広々LDK16帖
■会話が弾む開放的な対面キッチン
■雨の日でも快適に使える浴室乾燥機
■全居室収納付きでお部屋もすっきり
■大型荷物も安心のWIC×2
■家庭菜園なども楽しめる南面ワイドバルコニー
■毎日の生活に便利な周辺買物施設充実
■光熱費を抑え快適に暮らせるZEH水準仕様
■安心と資産価値の高い長期優良住宅
東武伊勢崎・大師線 草加駅 バス 16分 「稲荷コミュニティーセンター入口」 停歩 2分