※家具・インテリアはCGによるイメージです。実際の室内にはございませんが、生活のイメージを感じていただけるよう演出しています。
※家具・インテリアはCGによるイメージです。実際の室内にはございませんが、生活のイメージを感じていただけるよう演出しています。
八條小学校400m(徒歩5分)
八條中学校2400m(徒歩30分)


【現地見学会開催中】
開放感あふれる南北両面道路に面した
たっぷりの光と心地よい風が通り抜けるお住まい◎
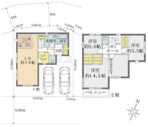
並列駐車2台可能で来客時にも安心です!
19帖の広々LDKは、対面キッチン仕様で
ご家族の会話も自然と弾む空間に◎
暮らしの変化に寄り添う4LDK可変型設計で
ご家族の成長に合わせた使い方が可能です♪
WIC×2、SIC、ファミリークロークを完備し
片付けやすく、散らかりにくい住まいをサポート◎
▪明るく開放的な南北両面道路
▪お子様のちょっとした遊び場にも!並列駐車2台可
▪ご家族が自然と集まるLDK19帖
▪お料理中も会話が弾む対面キッチン
▪毎日の家事負担を軽減する食洗機
▪ライフスタイルに寄り添う4LDK可変型
▪WIC×2、SIC、ファミリークロークなど収納充実
東武伊勢崎・大師線 草加駅 バス 20分 「広瀬病院前」 停歩 4分
つくばエクスプレス 八潮駅 バス 16分 「広瀬病院前」 停歩 5分