今すぐ無料の会員登録で
閲覧可能物件数が
+5,385

清門小学校640m(徒歩8分)

新栄中学校1440m(徒歩18分)

NO IMAGE
建物
物件画像
NO IMAGE
周辺環境
QRコードをスキャンして携帯でもご覧になれます。

草加市清門2丁目 中古一戸建て

中古一戸建て
3,880万円
    月々の返済額:10万円台
    埼玉県草加市清門2丁目

    東武伊勢崎・大師線 新田駅 徒歩 23分

    東武伊勢崎・大師線 獨協大学前駅 バス 11分 「清門南」 停歩 5分

    NEW現地見学会おすすめ会員限定
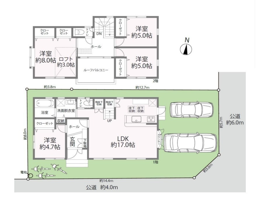
    間取り
    4LDK(4LDK)
    築年月
    2007年01月完成
    土地面積
    130.32㎡(39.42坪)[公簿]
    建物面積
    102.26㎡(30.93坪)[登記]
    今すぐ会員登録する資料請求お気に入りに追加
    お問い合わせ先: 0120-830-021
    電話でお問合せする

    南東角地、土地39坪以上、並列駐車2台可(車種による)、外内装新規リフォーム、LDK17帖、対面キッチン、リビングイン階段、主寝室8帖、全居室収納、ロフト、南面ルーフバルコニー

    安心して笑顔で 住宅購入できるように 寄り添う姿勢を大切に

    物件情報
    名称
    草加市清門2丁目 中古一戸建て
    価格
    3,880万円(税込)
    リフォーム
    あり [施工時期] 2025年11月 [箇所] キッチン 浴室 トイレ 壁、天井(クロス、塗装等) 床 その他 洗面 給湯器 外壁 屋根 . .
    権利金/保証金
    なし/なし
    所在地
    埼玉県草加市清門2丁目
    交通

    東武伊勢崎・大師線 新田駅 徒歩 23分

    東武伊勢崎・大師線 獨協大学前駅 バス 11分 「清門南」 停歩 5分

    間取り
    4LDK(4LDK)
    部屋
    1F LDK 17.0帖
    建物現況
    完成済
    建物面積
    102.26㎡(30.93坪)[登記]
    土地面積
    130.32㎡(39.42坪)[公簿]
    地目
    宅地
    土地権利
    所有権
    築年月
    2007年01月完成
    建物構造
    木造(W)
    建物階建
    2階建
    駐車場
    あり 2台
    設備・条件
    フローリング カウンターキッチン システムキッチン シャンプードレッサー トイレ2ヶ所 洗面化粧台 オートバス 浴室1坪以上 追い焚き ロフト シューズボックス 全居室収納 床下収納 TVドアホン 日当り良好 ガス:都市ガス コンロ:ガス、三口 汚水:公共下水(使用可) 雑排水:公共下水(使用可) 水道:公営水道(使用可)
    都市計画
    市街化区域
    用途地域
    第一種低層住居専用地域
    建ぺい率/容積率
    60%/150%
    国土法の届出
    不要
    地勢
    平坦
    セットバック
    なし
    私道負担
    なし
    接道状況
    二方(角地) 南:幅員4.0m公道 東:幅員6.0m公道
    引渡時期
    相談
    備考
    清門小学校640m(徒歩8分)、新栄中学校1440m(徒歩18分) ※22条区域、新田西部地区地区計画
    物件情報更新日
    2025年12月08日(物件情報更新日より14日以内に更新)
    物件コード
    72753688
    取引態様
    仲介
    今すぐ会員登録する資料請求お気に入りに追加
    お問い合わせ先: 0120-830-021
    電話でお問合せする
    センチュリー21 草加市民ハウジング
    センチュリー21 草加市民ハウジング
    〒340-0016
    埼玉県草加市中央2丁目15-8 草加市民ハウジングビル
    0120-830-021
    営業時間:09:00~19:00 定休日:水曜日
    ローンシミュレーション
    • {{error}}
    物件価格
    3,880万円
    借入予定額
    万円
    頭金
    万円
    ボーナス(1回分)
    万円
    返済期間
    ローン金利
    ※ 金利参考先:住信SBIネット銀行
    金利
    %
    毎月の支払額
    {{repayment_price}} 円

    条件がよく似た物件

    間取図/区画図
    その他
    清門小学校640m(徒歩8分)
    その他
    新栄中学校1440m(徒歩18分)
    間取図/区画図
    その他
    清門小学校640m(徒歩8分)
    その他
    新栄中学校1440m(徒歩18分)
    スマートフォン版の表示に切り替える