2/26撮影
2/26撮影
2/26撮影
2/26撮影
2/26撮影
2/26撮影
2/26撮影
瀬崎小学校1100m(徒歩16分)
瀬崎中学校550m(徒歩8分)
ファッションセンターしまむら 瀬崎店800m(徒歩11分)


東武伊勢崎・大師線 谷塚駅 徒歩 22分
東武伊勢崎・大師線 竹ノ塚駅 バス 20分 「瀬崎氷川公園」 停歩 7分
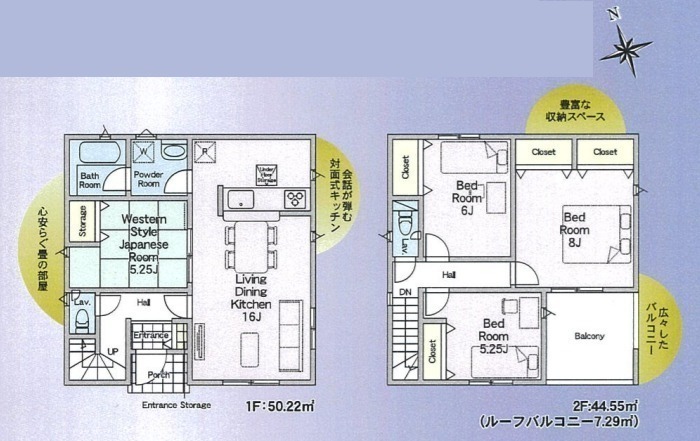
全10棟、南西道路、駐車2台可(車種による)、LDK16帖、対面キッチン、浴室乾燥機、全居室収納、主寝室8帖、防犯カメラ、ルーフバルコニー
東武伊勢崎・大師線 谷塚駅 徒歩 22分
東武伊勢崎・大師線 竹ノ塚駅 バス 20分 「瀬崎氷川公園」 停歩 7分