今すぐ無料の会員登録で
閲覧可能物件数が
+4,933

八幡小学校1200m(徒歩15分)、

川柳中学校2000m(徒歩25分)

NO IMAGE
建物
物件画像
NO IMAGE
周辺環境
QRコードをスキャンして携帯でもご覧になれます。

草加市中根1丁目 新築一戸建て 2期

新築一戸建て
3,980万円
    月々の返済額:10万円台
    埼玉県草加市中根1丁目

    東武伊勢崎・大師線 獨協大学前駅 徒歩 9分

    NEW現地見学会おすすめ会員限定
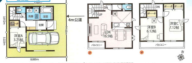
    間取り
    3LDK(3LDK)
    築年月
    2026年01月完成
    土地面積
    57.14㎡(17.28坪)[公簿]
    建物面積
    96.46㎡(29.17坪)[登記]
    今すぐ会員登録する資料請求お気に入りに追加
    お問い合わせ先: 0120-830-021
    電話でお問合せする

    駅徒歩9分、ビルトイン車庫、リビングイン階段、カウンターキッチン、LDK16帖以上、主寝室7帖以上、バルコニー×2、商業施設充実

    安心して任せていただけるよう、不動産初心者の方にもわかりやすく丁寧にご案内いたし

    物件情報
    名称
    草加市中根1丁目 新築一戸建て 2期
    価格
    3,980万円(税込)
    権利金/保証金
    なし/なし
    所在地
    埼玉県草加市中根1丁目
    交通

    東武伊勢崎・大師線 獨協大学前駅 徒歩 9分

    間取り
    3LDK(3LDK)
    部屋
    2F LDK 16.5帖
    建物現況
    完成済
    建物面積
    96.46㎡(29.17坪)[登記]
    土地面積
    57.14㎡(17.28坪)[公簿]
    地目
    宅地
    土地権利
    所有権
    築年月
    2026年01月完成
    建物構造
    木造(W)
    建物階建
    3階建
    駐車場
    あり 1台
    建築確認番号
    第HPA-25-11449-1号
    設備・条件
    追い焚き 日当り良好 複層ガラス 耐震 24時間換気システム バルコニー TVドアホン 床下収納 全居室収納 シューズボックス フローリング 浴室1坪以上 浴室乾燥機 オートバス 洗面化粧台 トイレ2ヶ所 シャンプードレッサー システムキッチン カウンターキッチン ガス:都市ガス コンロ:ガス、三口 汚水:公共下水(使用可) 水道:公営水道(使用可)
    都市計画
    市街化区域
    用途地域
    準工業地域
    建ぺい率/容積率
    60%/200%
    国土法の届出
    不要
    地勢
    平坦
    セットバック
    なし
    私道負担
    なし
    接道状況
    一方 東:幅員4.0m接面幅7.1m公道
    引渡時期
    即引渡し可
    備考
    八幡小学校1200m(徒歩15分)、川柳中学校2000m(徒歩25分)
    物件情報更新日
    2026年02月13日(物件情報更新日より14日以内に更新)
    物件コード
    74323853
    取引態様
    仲介
    今すぐ会員登録する資料請求お気に入りに追加
    お問い合わせ先: 0120-830-021
    電話でお問合せする
    センチュリー21 草加市民ハウジング
    センチュリー21 草加市民ハウジング
    〒340-0016
    埼玉県草加市中央2丁目15-8 草加市民ハウジングビル
    0120-830-021
    営業時間:09:00~19:00 定休日:水曜日
    ローンシミュレーション
    • {{error}}
    物件価格
    3,980万円
    借入予定額
    万円
    頭金
    万円
    ボーナス(1回分)
    万円
    返済期間
    ローン金利
    ※ 金利参考先:住信SBIネット銀行
    金利
    %
    毎月の支払額
    {{repayment_price}} 円

    条件がよく似た物件

    間取図/区画図
    その他
    八幡小学校1200m(徒歩15分)、
    その他
    川柳中学校2000m(徒歩25分)
    間取図/区画図
    その他
    八幡小学校1200m(徒歩15分)、
    その他
    川柳中学校2000m(徒歩25分)
    スマートフォン版の表示に切り替える